The Pooter 19 sailboat mast is manufactured for IM by Columbia Pacific Company. It is made of an aluminum alloy whose physical properties (alloy composition and temper) conform to the standards for "6061T6 Aluminum Alloy."
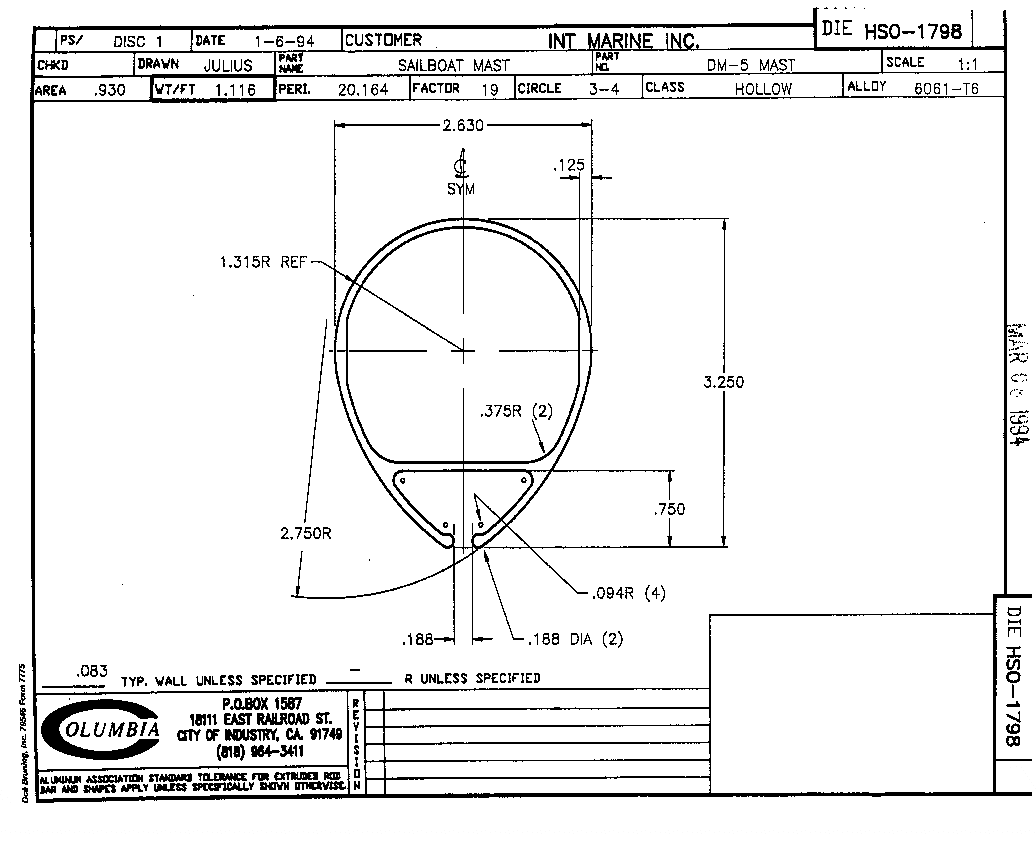
The DM5 mast by Dwyer Mast Company, which is very similar to the P19 mast supplied by Columbia Pacific, is also made of 6061T6 aluminum alloy, according to a cnoversation I had with Mr. Dwyer. In direct answer to my question, Mr. Dwyer expressed the opinion that one could bend the DM5 mast with an adjustable backstay several inches without damaging it. He said that four to six inches of bow in a 22 foot mast was well within the mast's structural limitation.
You can take a look at the DM5 mast at the Dwyer Mast Company.
IMPORTANT DISCLAIMER: I do not publically recommend that anyone use an adjustable backstay on his/her P19 with the Columbia Pacific Mast. I do not have the credentials to advise you on that matter. However, I hope this provides enough information to Potter 19 skipper to make an informed, intelligent decision.
Judith Blumhorst, DC
1985 WWP19 #266 "Red Wing"
SF Bay, CA

